7월 선교소식 > 선교지소식

본문 바로가기

선교지소식

태국 7월 선교소식

페이지 정보

profile_image
작성자 늘푸른교회
댓글 0건 조회 1,055회 작성일 24-07-28 14:32

본문

사랑하는 태국 감리교교단 후원자 여러분께 주님의 이름으로 안부 인사를 드립니다.

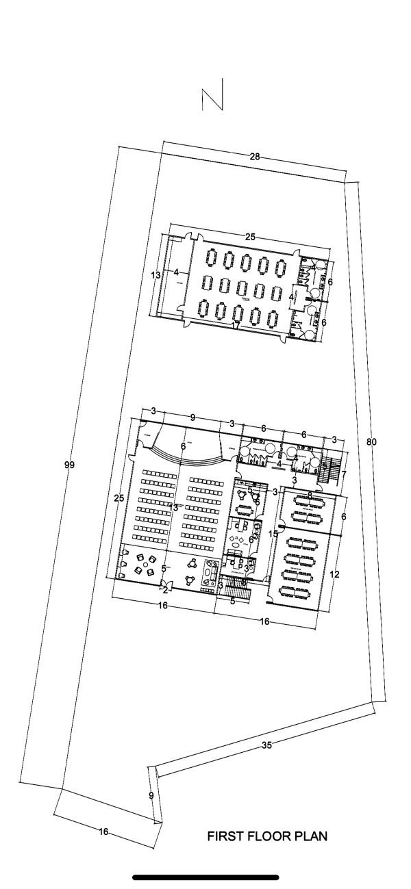
웨슬리 선교센터 평면도

드디어 웨슬리 선교센터 평면도가 나왔습니다. 이 평면도를 가지고 건축허가를 받기에는 부족하지만 저는 오는 9월말에 태국을 방문해서 이 평면도를 기초로해서 태국 건축기사와 상담을 거친후에 완성된 평면도를 가지고  태국정부로부터 건축허가를 받게 됩니다. 
9월말에 현지 목사들과 함께 착공식을 가진후에 건축허가가 나오는대로 공사를 시작하게 됩니다. 내년 6월전에는 공사가 대충 마무리될것 같습니다. 
위의 왼쪽 평면도의 맨 위의 건물에는 부엌과 100명정도가 함께 식사할 수 있는 야외식당 그리고 여러개의 화장실이 세워집니다.  
아래 주건물에는 일층 왼쪽에는 250명정도 들어갈 수 있는 강당, 오른쪽에는 50명과 30명이 들어갈 2개의 신학교 강의실, 교단/신학교 사무실과 부엌과 작은 식당, 그리고 화장실이 들어 섭니다. 
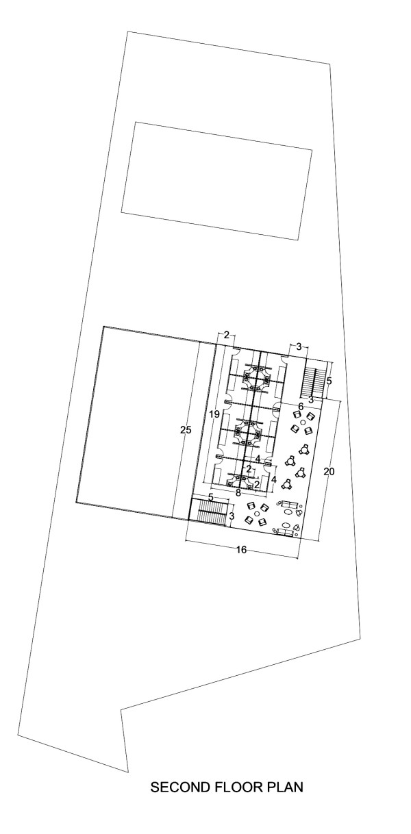
그리고 위의 오른쪽 평면도는 이층 평면도입니다. 일층에 위치한 강의실과 사무실위의 세워질 이층에는 40명이 잘 수 있는 기숙사방 10개가 들어 섭니다. 평면도에는 없지만 선교센터 입구 오른쪽에 공터가 있는데 그곳에 게스트들을 위해서 여러개의 방이 있는 단층건물이 들어 섭니다. 
선교센터 중앙과 왼쪽으로는 승용차 주차장을 만들게 됩니다. 그리고 맨위에 위치한 식당과 주건물 사이에 있는 공터에는 오토바이 주차장이 들어 섭니다. 참고로  평면도의 모든 치수는 미터입니다.

그동안 아는 건축기사가 없어서 평면도조차 만들지 못하고 있었는데 실내장식을 전문으로 하시는 지인께서 도움을
주셔서 평면도가 나올 수 있었습니다.  
평면도가 막상 만들어지고 나니까 이제는 어떻게 지어야할까 걱정이 됩니다.^^ 왜냐하면 현재까지 건축에 필요한 자금이 전혀 없기 떄문이죠.  
경비를 최소화해도 적어도 $200,000은 필요한데 어떻게 모아야할지 막막합니다. 그러나 지난 15년동안 태국사역을 하면서 한번도 충분한 자금이 있어본 적이 없었지만 주님께서는 매번 필요한만큼만 채워주셔서 계획한 사역들을 끝낼 수 있었기떄문에 이번 웨슬리 선교센터를 짓는데 필요한 자금도 채워 주시리라 믿습니다. 그래서 후원자분들의 기도와 도움이 필요합니다.

기도제목

  1. 웨슬리 선교센터 건축에 필요한 $200,000이 채워 지도록
          2.  9월에 준비중인 주일학교 교사훈련이 계획대로 이루어 지도록 

          3.  태국에 다시 돌아가서 사역을 할 수 있는 여건이 채워 지도록

         4.  계획한 사역들을 감당할 수 있는 제 건강을 위해서

댓글목록

등록된 댓글이 없습니다.